Dettagli
Inserito il
18/08/2025
5 piani
5 appartamenti
5 posti auto
A
Anno costruzione: 2025
Nel cuore di Monserrato, in Via Serpentara, nasce un nuovo complesso residenziale pensato per chi desidera vivere in spazi moderni, eleganti e funzionali.
Proponiamo un bivano e 4 trivani, progettati con materiali di pregio e soluzioni tecnologiche all’avanguardia per garantire comfort, efficienza energetica e qualità abitativa.
L’edificio si sviluppa su cinque piani, con ampie terrazze, ambienti luminosi e servizi esclusivi pensati per soddisfare le esigenze di chi cerca una casa di nuova generazione.
L’edificio si sviluppa su tre piani, con servizi e comfort pensati per soddisfare le esigenze più raffinate.
finiture e caratteristiche speciali
Materiali di alta qualità e rifiniture di pregio
Ampie finestre per un’illuminazione naturale e ambienti accoglienti
Balconi e terrazze per vivere momenti di relax all’aria aperta
Riscaldamento e raffrescamento autonomo con regolazione della temperatura
Impianto fotovoltaico privato per ogni unità abitativa
Efficienza energetica garantita da tecnologie all’avanguardia
caratteristiche aggiuntive
Posto auto coperto di pertinenza per ogni unità immobiliare
Cantina privata inclusa
Posizione strategica, a pochi passi da scuole, parchi, servizi e stazione metropolitana
Collegamenti rapidi con il centro città e le zone costiere
Complesso residenziale moderno con spazi verdi e aree comuni
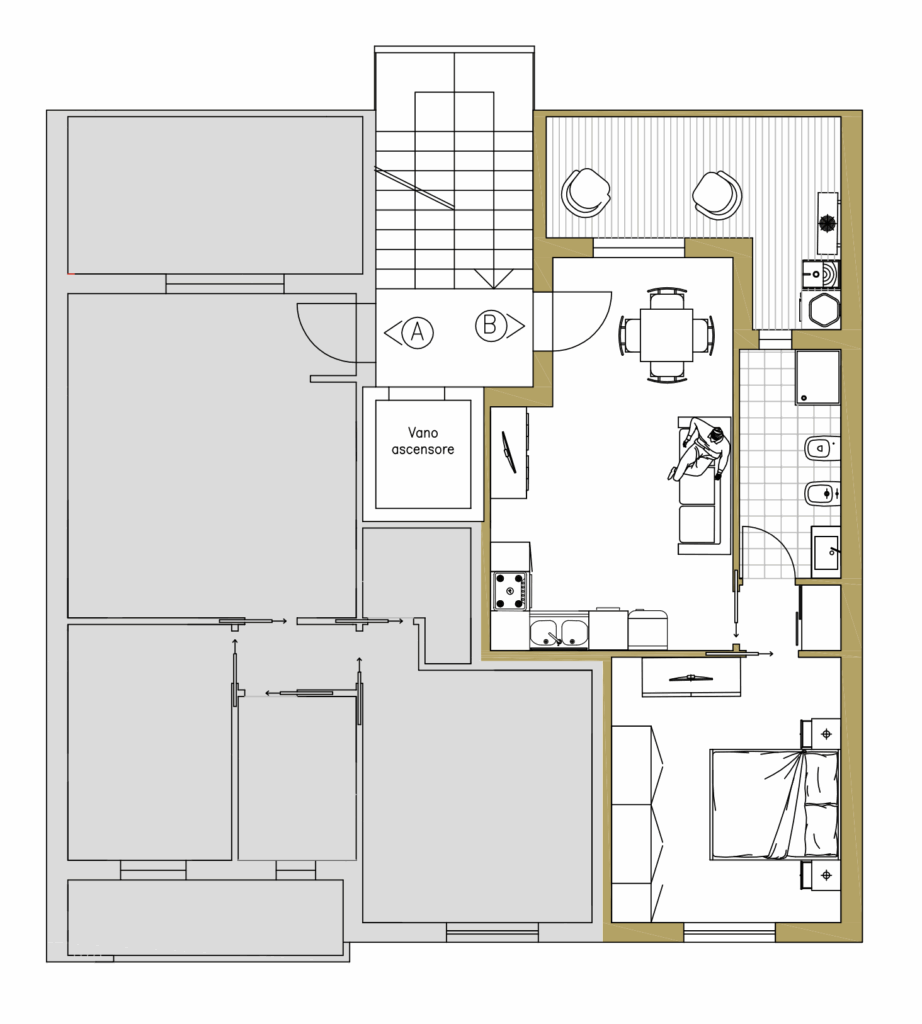
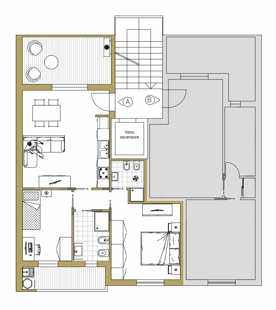
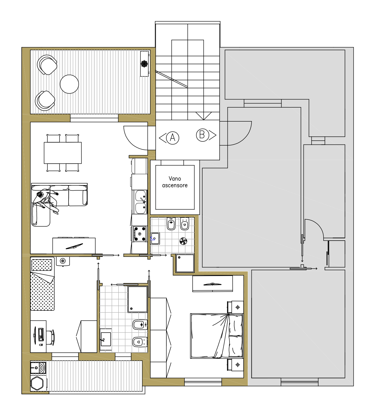
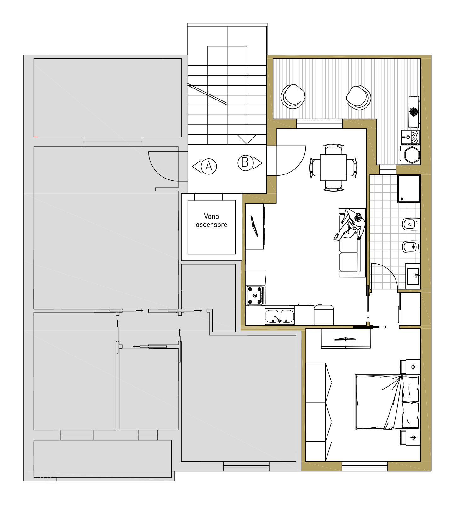
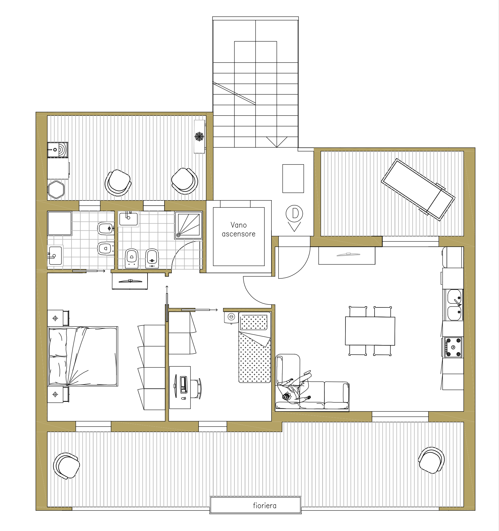
Bivano e trivani
BIVANO
- Zona giorno luminosa
- Disimpegno
- Bagno moderno
- Camera da letto matrimoniale
- Lavatoio
- Cantina privata
TRIVANO
- Ampia zona giorno con cucina a vista
- Disimpegno funzionale
- 2 Bagni moderni
- Camera da letto matrimoniale
- Camera da letto singola
- Lavatoio
- Balcone o terrazza
PLANIMETRIE
MAPPA
COMPILA IL MODULO PER RICHIEDERE MAGGIORI INFORMAZIONI SULL’IMMOBILE














